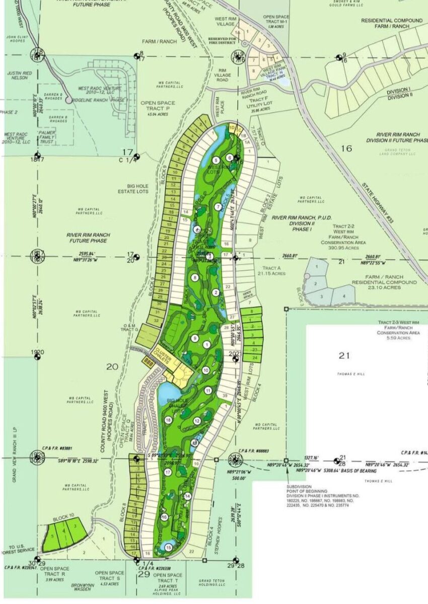
This 2023 amendment #7 and revised final plat modified the River Rim Ranch Master Plan and PUD, established in 2006 and later amended in 2014, to reconfigure plots and allow for the development of a golf course, along with associated and supporting incidental commercial development. The total number of lots remained the same, at 307, but they were reconfigured for the new proposed development pattern. Bechtle developed a home design with ADU on three sites, the first Block 6, Lot 4, which started construction in the Summer of 2025.
- 4,477 acres
- Client: Grand Teton Land Company (David Choo)
- Location: Tetonia, Idaho
Check out our rendered video fly through! Click here!







